Россия, Белгород, улица Булата Окуджавы, 1 стр
Описание квартиры в "Дубрава (40 га)"
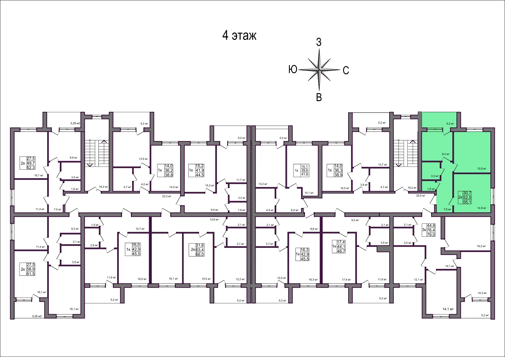
Доступна к покупке 2-комнатная квартира в современном жилом комплексе "Дубрава (40 га)" 🏢.
Квартира расположена на 1-м этаже 4-этажного дома.
Прекрасный выбор для инвестиций.
Удобная планировка
- ✅ Общая площадь: 55.1 м².
- ✅ Просторная жилая площадь: 0 м².
- ✅ Кухня: - м² — место для кулинарных шедевров.
Особенности квартиры
- 🔧 Вариант отделки: без ремонта. Минимум грязных работ.
- 🌞 Панорамное остекление наполняют помещения природным светом.
- 🌿 Класс жилья: Комфорт — высокое качество строительства.
Финансы и ипотека
- 💳 Ипотека от 17 862 руб/мес.
- 🏦 Подходит под семейную и IT ипотеку.
- 🤝 Эскроу-счета гарантирует надежность.
Чтобы забронировать эту квартиру бесплатно и зафиксировать цену — свяжитесь с нами прямо сейчас! 📞
Характеристики новостройки в Дубрава (40 га)
- Номер квартиры: 1
- Вариант отделки: без ремонта
- Общая площадь: 55.1 м²
- Жилая площадь: 0 м²
- Площадь кухни: - м²
- Класс жилья: Комфорт
- Количество комнат: 2-комнатная квартира
- Этаж: 1
- Этажность дома: 4
Полезная информация о Дубрава (40 га)
Удобное расположение, развитая инфраструктура, теплые и комфортные квартиры и студии