Россия, Белгород, улица Булата Окуджавы, 1 стр
Обзор квартиры в "Дубрава (40 га)"
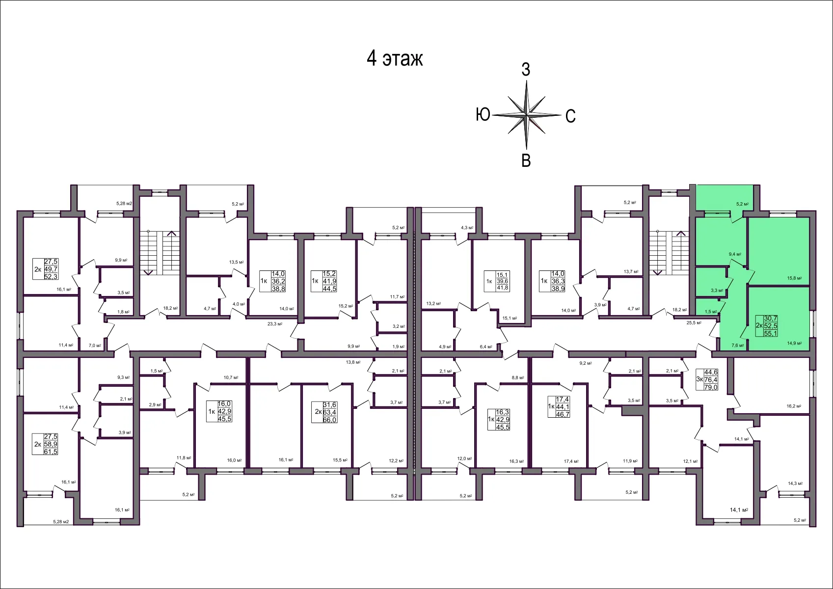
В продаже 2-комнатная квартира в современном жилом комплексе "Дубрава (40 га)" 🏢.
Квартира расположена на 1-м этаже 4-этажного дома.
Отличный вариант для комфортной жизни.
Продуманная планировка
- ✅ Общая площадь: 55.1 м².
- ✅ Светлая жилая площадь: 0 м².
- ✅ Кухня: - м² — место для кулинарных шедевров.
Особенности квартиры
- 🔧 Вариант отделки: без ремонта. Готовая база для вашего интерьера.
- 🌞 Увеличенные оконные проемы наполняют помещения природным светом.
- 🌿 Класс жилья: Комфорт — современные технологии.
Финансы и ипотека
- 💳 Ипотека от 17 862 руб/мес.
- 🏦 Доступны льготные программы господдержки.
- 🤝 Эскроу-счета гарантирует надежность.
Чтобы забронировать эту квартиру бесплатно и зафиксировать цену — свяжитесь с нами прямо сейчас! 📞
Характеристики новостройки в Дубрава (40 га)
- Номер квартиры: 1
- Вариант отделки: без ремонта
- Общая площадь: 55.1 м²
- Жилая площадь: 0 м²
- Площадь кухни: - м²
- Класс жилья: Комфорт
- Количество комнат: 2-комнатная квартира
- Этаж: 1
- Этажность дома: 4
Полезная информация о Дубрава (40 га)
Удобное расположение, развитая инфраструктура, теплые и комфортные квартиры и студии