Описание квартиры в "ЖК Луч"
Доступна к покупке 2-комнатная квартира в современном жилом комплексе "ЖК Луч" 🏢.
Квартира расположена на 13-м этаже 19-этажного дома.
Отличный вариант для семьи.
Продуманная планировка
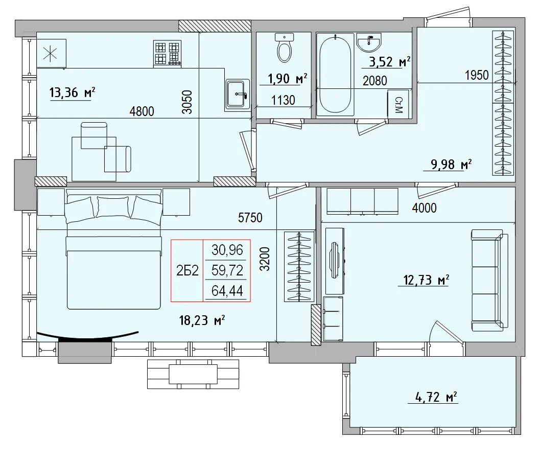
- ✅ Общая площадь: 64.44 м².
- ✅ Просторная жилая площадь: 30.96 м².
- ✅ Кухня: 13.36 м² — место для кулинарных шедевров.
Особенности квартиры
- 🔧 Вариант отделки: чистовая отделка. Это позволит вам сразу приступить к ремонту.
- 🌞 Увеличенные оконные проемы наполняют помещения естественным светом.
- 🌿 Класс жилья: Комфорт — высокое качество строительства.
Выгодные условия покупки
- 💳 Ипотека от 66 075 руб/мес.
- 🏦 Подходит под семейную и IT ипотеку.
- 🤝 Безопасная сделка гарантирует спокойствие.
Чтобы забронировать эту квартиру бесплатно и зафиксировать цену — свяжитесь с нами прямо сейчас! 📞
Характеристики новостройки в ЖК Луч
- Номер квартиры: 109
- Вариант отделки: чистовая отделка
- Общая площадь: 64.44 м²
- Жилая площадь: 30.96 м²
- Площадь кухни: 13.36 м²
- Класс жилья: Комфорт
- Количество комнат: 2-комнатная квартира
- Этаж: 13
- Этажность дома: 19
Полезная информация о ЖК Луч